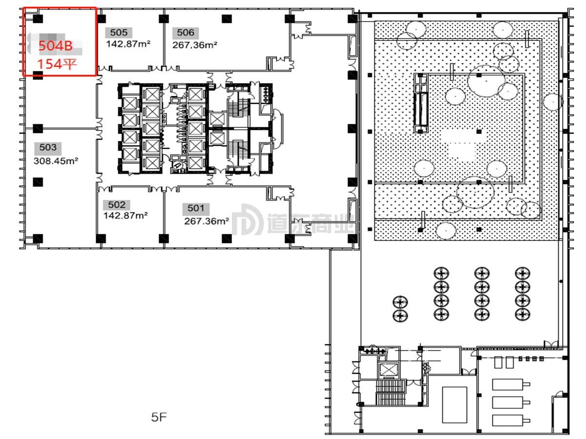
- 154㎡
- 建筑面积
- 个工位
- 可容纳工位
-
精装
- 装修程度
微信扫码咨询
办公室概况
- 可注册 可注册
- 朝向 东南
- 最短租期 1年
- 装修情况
精装
- 价格优势 1.60元/m²⋅
天 ,约
0.75 万元/月
- 面积信息 154㎡,得房率约68% ,可容纳工位个
- 付款方式
- 物业费 18,(部分楼层)21元/㎡/月
本楼盘平均租金
1.83元/m²⋅天
最低租金1.5元/m²/
天
最高租金2.3元/m²/
天
联合金融大厦
- 1.5 元/m²/
天 起
- 竣工时间 2018年
- 车位数量 344个
- 物业公司 深圳吉祥服务集团有限公司无锡分公司
- 在租户型 49个房源

在线咨询

电话咨询
400-7780-870
(8:00-22:00)

微信咨询